0
Starting Price
Bedrooms
Location
Nestled on the coveted Palm Jumeirah, Como Residences is an uber-luxe water-inspired development by Nakheel. Oozing the ultimate elegance and magnificence, the stunning tower will take the shape of an organic seashell, rising towards the sky. Como Residences offers just 76 limited-edition residences, namely 2–6 bedroom apartments, 7-bedroom duplexes and one spectacular 5-bedroom duplex penthouse. The complex will consist of 75 storeys (G+3P+71) and is set to become the tallest on the island, measuring 984 ft.






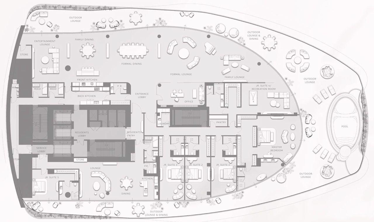
The total size of properties ranges from a spacious 4,470 sq. ft to a colossal 21,949 sq. ft. Each extravagant residence will come with outdoor lounges and dining areas, at least one maid’s room and back & front kitchens for the utmost convenience of homeowners. Select layouts also include a private swimming pool, which will add to the resort-like atmosphere. Not forgetting a separate driver’s quarters which will be featured in a number of exquisite apartments.
Thanks to the innovative design, each exclusive unit will enjoy either 180 or 360-degree panoramic views of the Burj Khalifa, the Burj Al Arab, Palm Jumeirah and Ain Dubai. Among the key features of the properties are branded kitchen appliances, high ceilings in the living rooms, floor-to-ceiling thermally insulated windows and smart home features. Please note that there will be 3 design colour schemes to select from: Opal — White, Mist — Grey, Sand — Beige.
You will be provided with the utmost privacy, as each floor will house only 1 or 2 apartments. That said, the units will be served by access-controlled elevators leading to individual private lobbies. Residents will be provided with between 3–7 parking bays, depending on the property type, and the exclusive penthouse will have 10 designated car spots.
Como Residences will be designed to create a feeling of a never-ending holiday. The highlights of the long-awaited complex include a series of vertical lakes and a rooftop infinity pool that will be located on the 71st floor. On top of that, a 360-degree viewing deck will be situated on the rooftop as well, which will be the highest viewing point on Palm Jumeir
Details | Floorplan | Floorplan |
2 Bedrooms Apartment 4,469 sq. ft | 21,000,000 AED | |
3 Bedrooms Apartment 5,577 sq. ft. | 32,000,000 AED | |
3 Bedrooms Apartment 9,327 sq. ft. | Ask for Price | |
4 Bedrooms Apartment 9,297 sq. ft. | 52,000,000 AED | |
5 Bedrooms Apartment 7,706 sq. ft. | 70,000,000 AED | |
6 Bedrooms Apartment 19,682 sq. ft. | 107,000,000 AED |
Exclusive Waterfront Living: A premium selection of 1–3 bedroom apartments, 4-bedroom duplexes with private pools, beach houses with gardens and terraces, and a limited number of luxury villas with stunning sea views.
700-Meter Private Beach: Residents enjoy direct access to a pristine beachfront, offering a serene coastal lifestyle.
Resort-Style Amenities: Infinity pools, a state-of-the-art fitness center, spa, yoga deck, and wellness facilities.
Family & Leisure Facilities: Dedicated kids’ play areas, game rooms, screening rooms, and lush landscaped gardens.
High-End Interiors: Modern layouts with spacious terraces, floor-to-ceiling windows, and premium branded appliances.
Concierge & Hospitality Services: Housekeeping, valet parking, and in-residence dining for a hotel-inspired lifestyle.
Como Residences will be located on the trunk of Palm Jumeirah, surrounded by a myriad of award-winning gourmet restaurants, fancy bars and coveted landmarks. For instance, a few of the nearest dining venues are Little Neighborhood, The Byron Bathers Club and Jones The Grocer.
Some of the emirate’s most luxurious resorts can also be found close by, including Radisson Resort Beach Palm Jumeirah, FIVE Palm Jumeirah and Hilton Dubai Palm Jumeirah. To enjoy the ultimate recreational experiences, you can visit The Pointe, which is home to boutiques, waterfront eateries, children’s entertainment areas and a dine-in cinema. Other popular attractions within the vicinity of Como Residences are as follows:
Thanks to direct access to Crescent Road, occupants of Como Residences will be able to easily move to/from the mainland of Dubai. As a result, travel time to Dubai International Airport will not exceed 25 minutes by car.
Compare listings
ComparePlease enter your username or email address. You will receive a link to create a new password via email.